img
Говорите сейчас!
864-410-9959
Свяжитесь с нами
Назад
118 Theodosia, Spartanburg, SC 29301

P-300

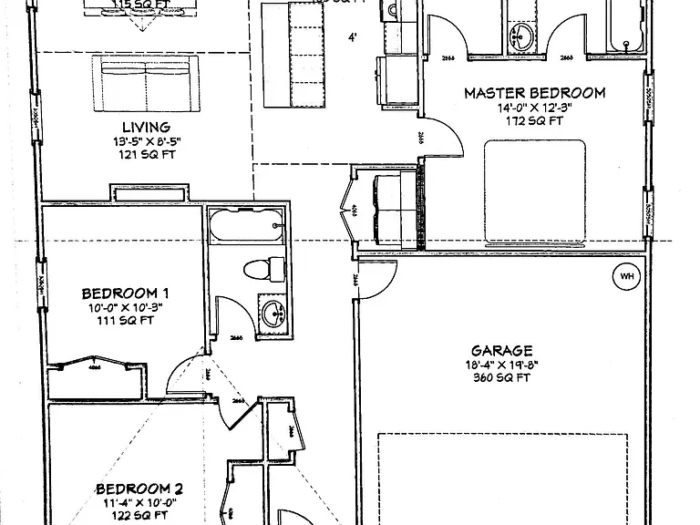
3
Спальни
2
Ванная комната
1.264
m2

Новый дом в современном стиле с 3 спальнями и 2 ванными комнатами. Open floor plan with 9ft ceilings, and recessed lighting. Кварцевые столешницы, техника из нержавеющей стали, центральный остров для дополнительного места. Кладовая, прачечная и гараж на 2 машины. Вы можете расслабиться после работы на заднем крыльце и насладиться звуками протекающего за домом ручья. Отличное расположение в престижном районе 7, удобный доступ к множеству местных достопримечательностей. Этот дом восхитителен и будет готов через 3-4 недели, если позволит погода.

Цена: $ 269,900
О доме

Галерея планов

О доме

План этажа и характеристики

Адрес
118 Феодосия
Город, улица, почтовый индекс
Спартанбург, штат Калифорния, 29301
Спальни
3
Полные ванны
2
квадратный фут
1,264
Цена
$269 900
План
Аббевиль
Гаражи
2-машины
Готовые дома

Карта и направления