img
Поговори зараз!
803-832-4933
Зв'яжіться з нами
Назад
116 Fowler St, Duncan, SC 29334

P-1105

3
Спальні
2
Ванна кімната

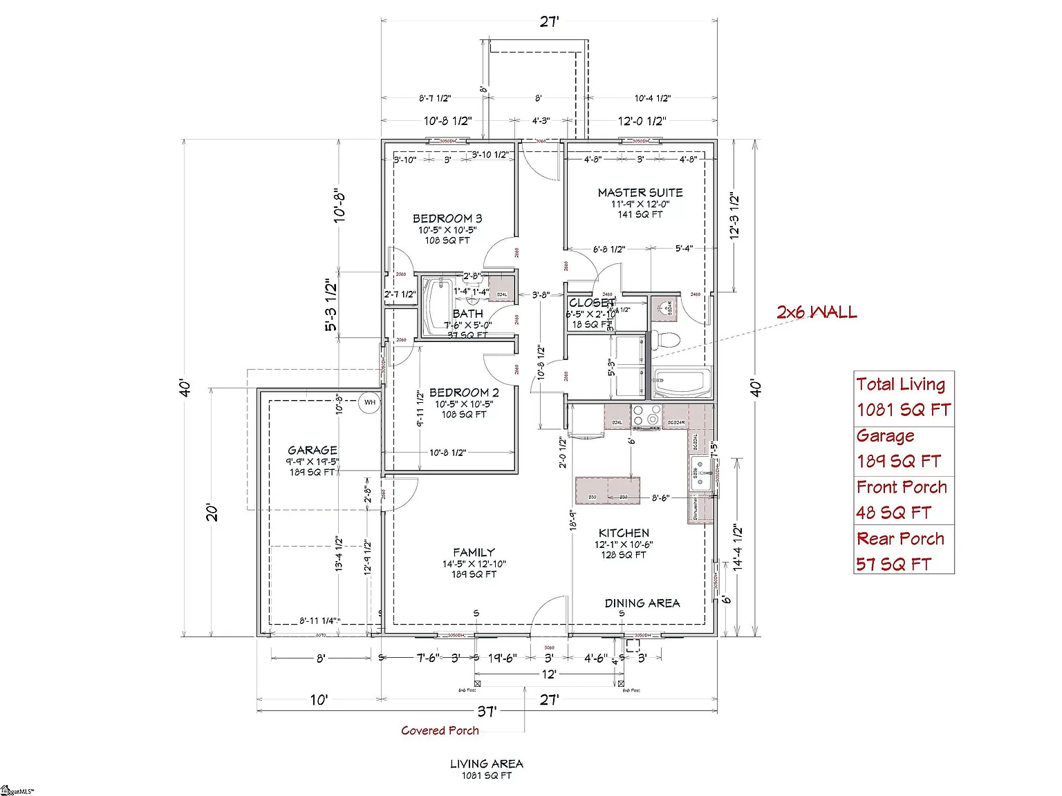
Ласкаво просимо до чарівного і бюджетного нового одноповерхового будинку площею 1081 квадратний фут без ОСББ. До послуг гостей 3 спальні, 2 ванні кімнати та прибудований гараж на одну машину. Будинок має відкриту концепцію, з входом, що веде до просторої вітальні та кухні. Кухня може похвалитися центральним островом з кварцовими стільницями, а підлога в усьому будинку покрита LVP (без килимів). Крім того, тут є пральня, 9-футові стелі та вбудоване освітлення. Орієнтовна дата завершення - кінець лютого 2024 року.

Ціна: $ 269,900
Про будинок

Галерея планів

Про будинок

План поверху та технічні характеристики

Адреса
116 Fowler St
Місто, вулиця, індекс
Дункан, SC 29334
Спальні
3
Повні ванни
2
Квадратних футів
Ціна
$269 900
План
Аббевіль
Гаражі
1 автомобіль
Готові будинки

Карта та маршрути