img
Поговори зараз!
803-832-4933
Зв'яжіться з нами
Назад
6002 Tributary Way LOT 52, Chesnee, SC 29323

P-3000

3
Спальні
2
Ванна кімната
1780
m2

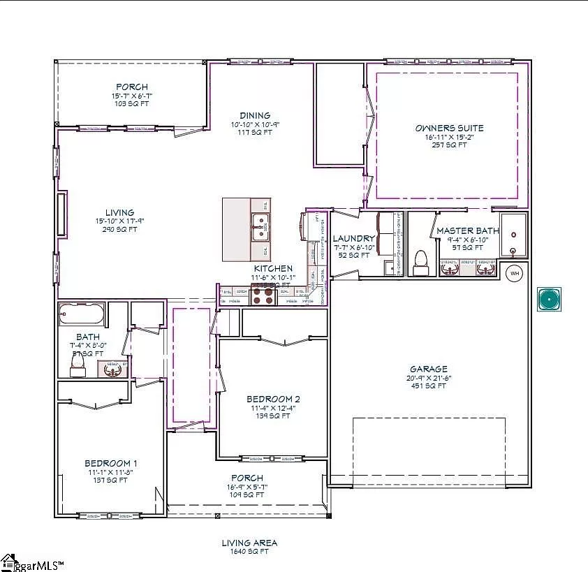
Відкрийте для себе ідеальний будинок у новому районі Томпсон-Крік - чарівну резиденцію з 3 спальнями та 2 ванними кімнатами площею 1780 кв. футів, без жодних внесків до ОСББ. Цей будинок пропонує гостинну відкриту концепцію вітальні, продумане планування спальні з роздільними ліжками та вражаючі особливості, включаючи стелі 9-10 футів, електричний камін, вбудовані світильники, акцентні стіни та міцну підлогу з ламінату. Кухня є центром уваги, з кварцовими стільницями, приладами з нержавіючої сталі, шафами, що м'яко закриваються, і сучасним дизайном, зосередженим навколо стильного острова. Вітальня плавно з'єднується з кухнею та їдальнею, створюючи ідеальний простір для розваг. Відпочивайте на затишних передніх і задніх верандах, додаючи нотку чарівності у ваше повсякденне життя. Очікуване завершення до кінця квітня 2024 року. Не пропустіть можливість зробити будинок своєї мрії з усіма сучасними зручностями. Також ми пропонуємо 4 спальні, 3 повноцінні ванні кімнати. Будь ласка, запитайте агента про ціну.

Ціна: $ 344,900
Про будинок

Галерея планів

Про будинок

План поверху та технічні характеристики

Адреса
6002 Tributary Way ЛОТ 52
Місто, вулиця, індекс
Чесні, SC 29323
Спальні
3
Повні ванни
2
Квадратних футів
1780
Ціна
$344900
План
Аббевіль
Гаражі
2-автомобіля
Готові будинки

Карта та маршрути